Dom z dodatkowymi działkami
Prątnica gm. Lubawa Pokaż na mapie ›
Ogłoszenie archiwalne Wygasło: Poniedziałek, 12 Maj, 2025 06:35
479 000 zł
2177 zł/m2
Szczegóły ogłoszenia
- Kategoria: Domy / Sprzedaż
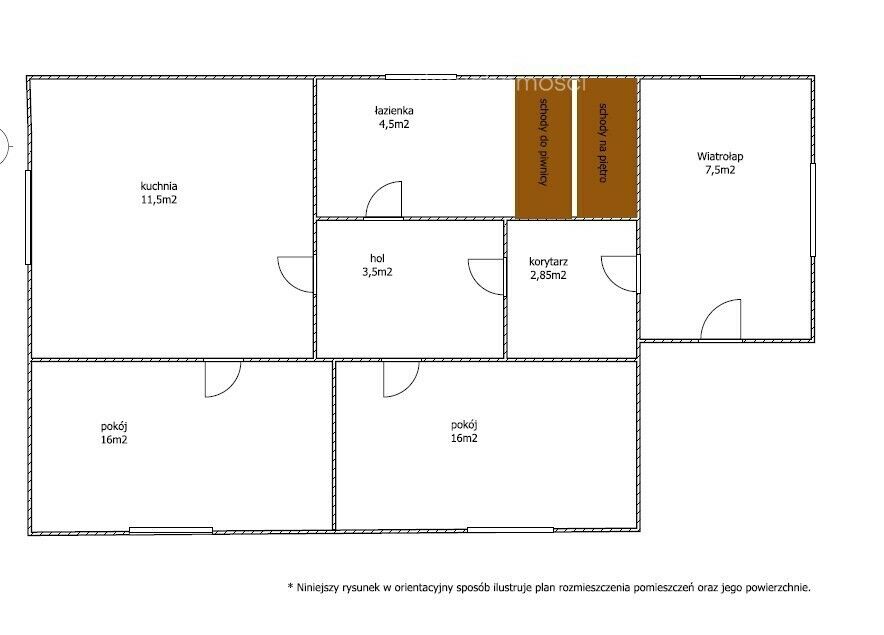
- Powierzchnia:220 m2
- Liczba pokoi:4 pokoje
- Pow. działki:5800 m2
- Rynek:Wtórny
- Rok budowy:1974
- Sprzedaż:Pośrednik
- Cena: 479 000 zł / 2177 zł/m2
Opis oferty
Nieruchomość o łącznej powierzchni 58ar.Działka o powierzchni 11 arów, zabudowana domem jednorodzinnym
podpiwniczonym z poddaszem użytkowym oraz budynkami gospodarczymi,
które można wykorzystać na różne sposoby – zarówno
inwestycyjnie (np. zakład mechaniczny), jak i jako dodatkową
przestrzeń użytkową.
Dodatkowo działka o powierzchni 47 arów daje szerokie możliwości
– można ją przeznaczyć pod uprawę, ubiegać się o warunki
zabudowy lub sprzedać, zyskując dodatkowe środki finansowe.
Dom z lat 70., który w 2011 roku przeszedł modernizację – został
docieplony styropianem i otynkowany. Dach zabezpieczony papą
termozgrzewalną konserwowaną lepikiem. Dodatkowo dobudowany jest
taras, wychodzący na ogród z przodu domu, idealny do relaksu na
świeżym powietrzu. Cała posesja jest ogrodzona, a nieruchomość
posiada duży potencjał inwestycyjny.
Prątnica to spokojna miejscowość, z której z łatwością
dostaniesz się do większych miast – Lubawa (ok. 5 km), Iława (22
km), Olsztyn (75 km). To idealne miejsce dla osób ceniących ciszę i
prywatność, bez sąsiadów zaglądających w okno. Tutaj możesz
cieszyć się spokojem i komfortem życia blisko natury a
jednocześnie z wygodnym dojazdem do pracy.
Numery działek:
223/1, 229/1, 227, 226/1, 229/2
Szczegóły oferty: FREEDOM Iława, ul. Kopernika 5, Katarzyna
Jakubowska, tel. 572 - pokaż numer telefonu -
* Do ceny transakcyjnej należy doliczyć koszty okołotransakcyjne.
"Właścicielem ogłoszenia wraz z jego elementami jest Freedom
Nieruchomości Sp. z o.o. lub podmioty współpracujące. Wszelkie
prawa zastrzeżone. Kopiowanie, rozpowszechnianie oraz korzystanie z
niniejszych materiałów w jakikolwiek inny sposób wykraczający poza
dozwolony użytek określony przepisami ustawy z 4 lutego 1994 r. o
prawie autorskim i prawach pokrewnych (Dz. U. 1994, nr 24 poz. 83 z
późn. zm.) bez pisemnej zgody Freedom Nieruchomości Sp. z o.o. lub
podmiotów współpracujących jest zabronione i może stanowić
podstawę odpowiedzialności cywilnej oraz karnej.
Ponadto niniejsze materiały stanowią tajemnicę przedsiębiorstwa
Freedom Nieruchomości Sp. z o.o. lub podmiotów współpracujących w
rozumieniu ustawy z dnia 16 kwietnia 1993 r. o zwalczaniu nieuczciwej
konkurencji (Dz. U. z 2003 r., Nr 153, poz. 1503 z późn. zm.).
Niniejsze ogłoszenie nie stanowi oferty w rozumieniu Kodeksu
Cywilnego, lecz ma charakter informacyjny."
Sprawdź zainteresowanie tym ogłoszeniem
Wyświetlenia
Data dodania
Ostatnio widziany
Obserwujących
Wysłane zapytania
Odsłony telefonu
Powiadom o podobnych ogłoszeniach
Lokalizacja: Prątnica
Kategoria: Nieruchomości » Domy » Sprzedaż
Cena: od 407000 zł do 551000 zł Powierzchnia : od 187 m2 do 253 m2
Chcę otrzymywać powiadomienia o nowych ofertach
To ogłoszenie jest archiwalne i może być nieaktualne.
Katarzyna Jakubowska
Konto firmowe
Na Lento.pl od 02 sty 2024
Odpowiada szybko
Strona użytkownika
- Wypromuj ogłoszenie
- Zgłoś naruszenie
- Edytuj/usuń ogłoszenie
- Udostępnij ogłoszenie
- Dodaj na Facebook





























